Projects
Design & Build
Contact
Projects
Design & Build
Contact
Netherlands Architecture Institute
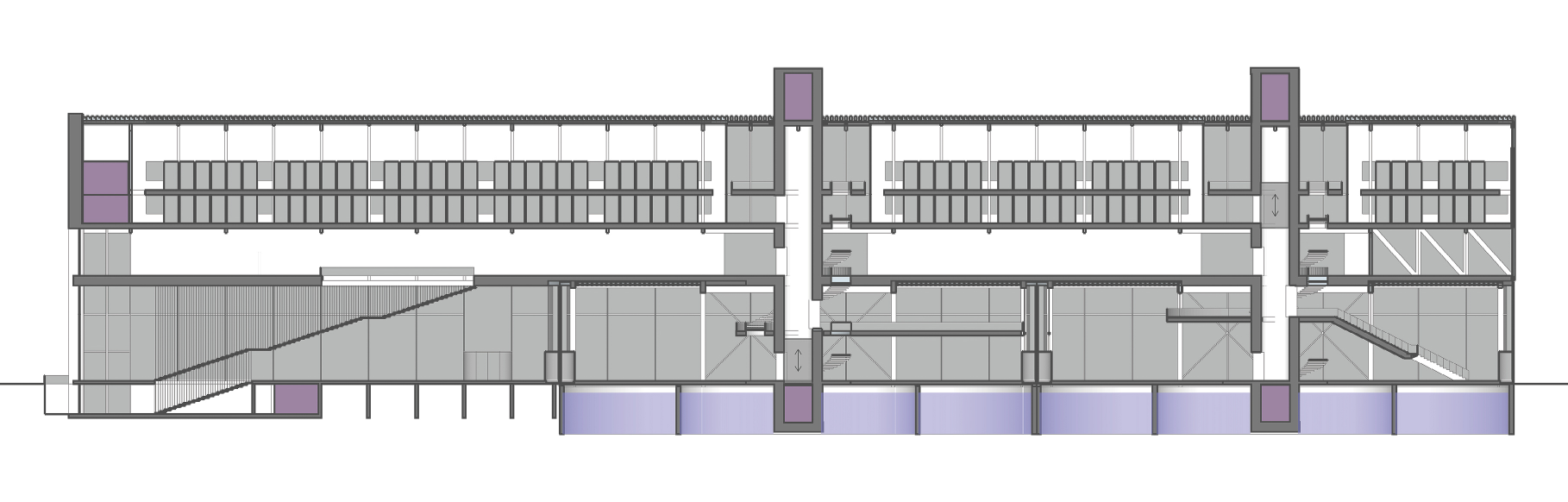
Schematic design - Public Building, Rotterdam
University Project - MSc Architecture, TU Delft
↑
Back to Top