Projects
Design & Build
Contact
Projects
Design & Build
Contact
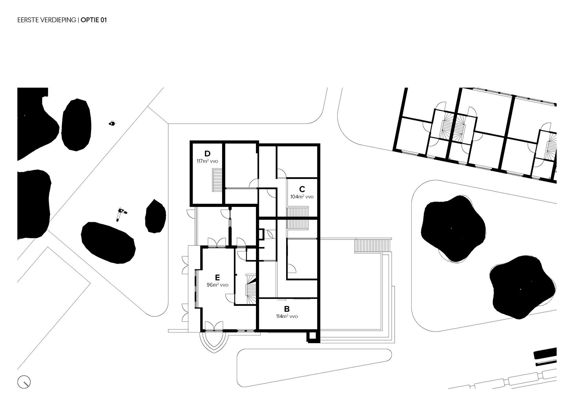
Oud Eemnesserweg
Schematic Design - Housing
Location
Schematic design proposal
↑
Back to Top