Projects
Design & Build
Contact
Projects
Design & Build
Contact
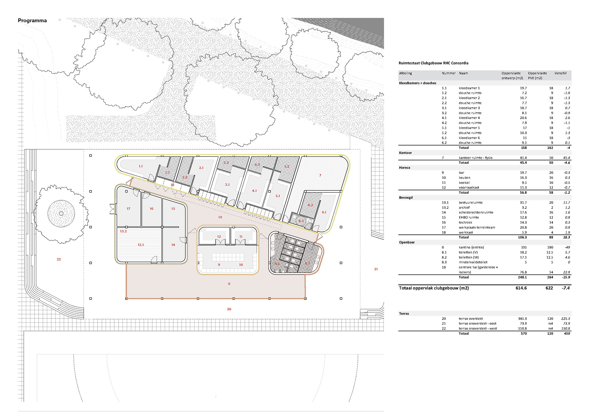
RHC Concordia
Sports Accommodation, Roermond
Clubhouse RHC Concordia - Roermond
↑
Back to Top