Projects
Design & Build
Contact
Projects
Design & Build
Contact
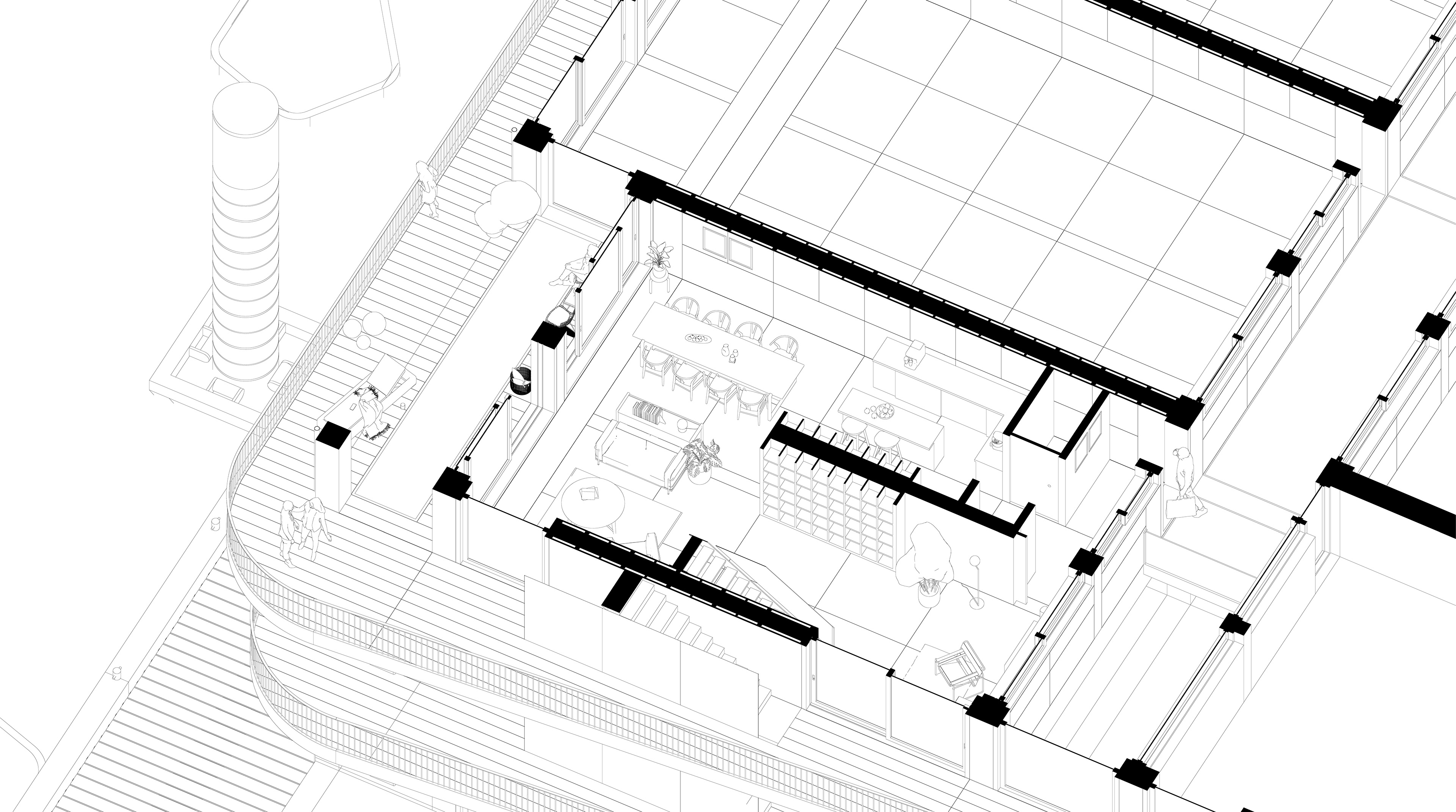
Towards Living with Water
Mixed Use + Housing, Rotterdam
Graduation Project - MSc Architecture, TU Delft
↑
Back to Top