Projects
Design & Build
Contact
Projects
Design & Build
Contact
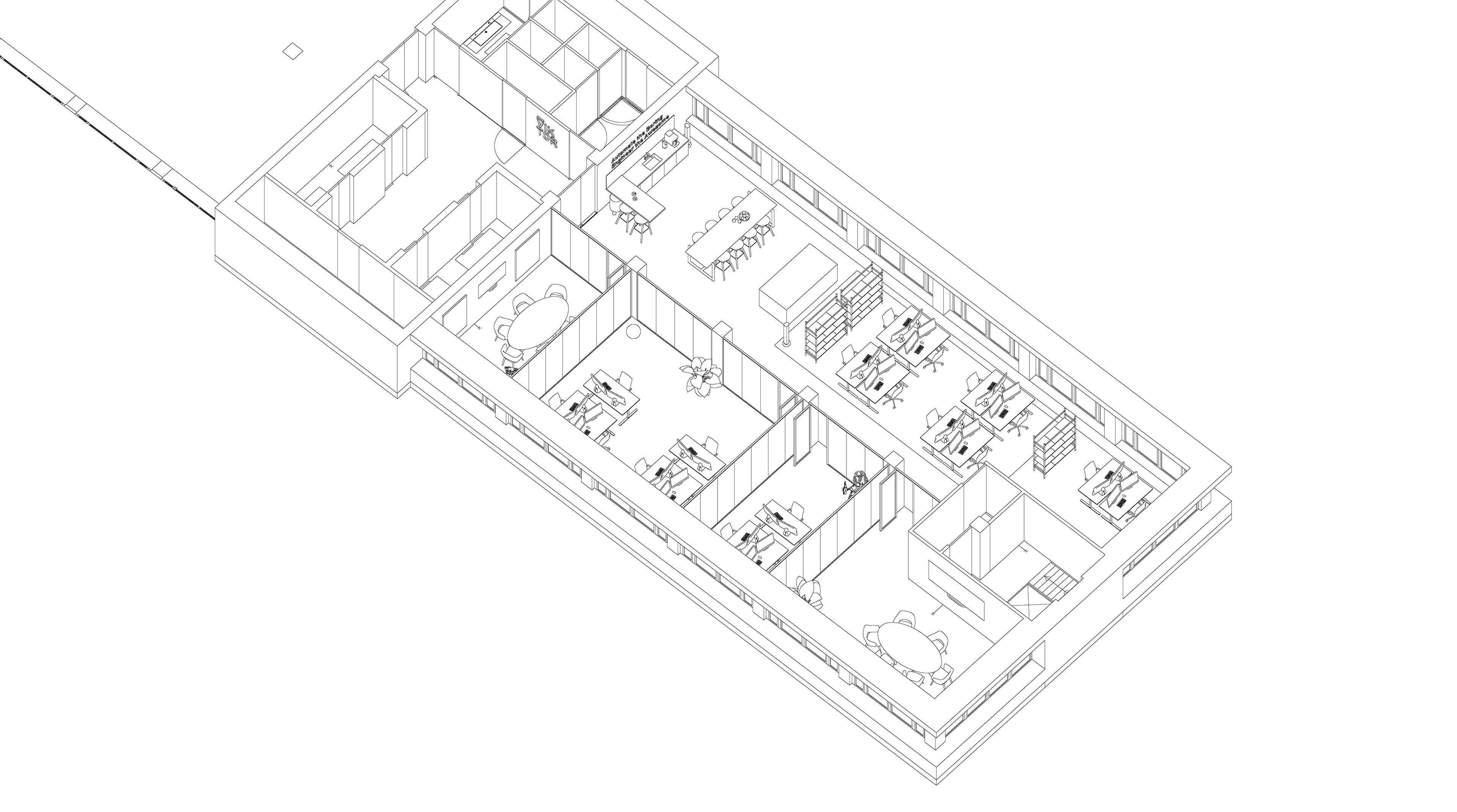
VIKTOR
Office Interior Design & Build - Premier Suites & Offices, Rotterdam
Commissioned by VIKTOR.ai
↑
Back to Top